Etudes & Conseils Cabinet Jacques Azoulay Négociateur
Télécharger la fiche
+8

Appartement 5 pièce(s) 3 chambre(s) 156.27 m²

Paris (75004)
10 450 € CC* * Charges comprises Référence LAP80000970

Caractéristiques de ce bien

  • Surface 156,27 m²
  • carrez 156,27 m²
  • 3 chambre(s)
  • 3 salle(s) d'eau
  • construit en 1850
  • cuisine américaine
  • exposition Nord-Est
  • 2 niveau(x)
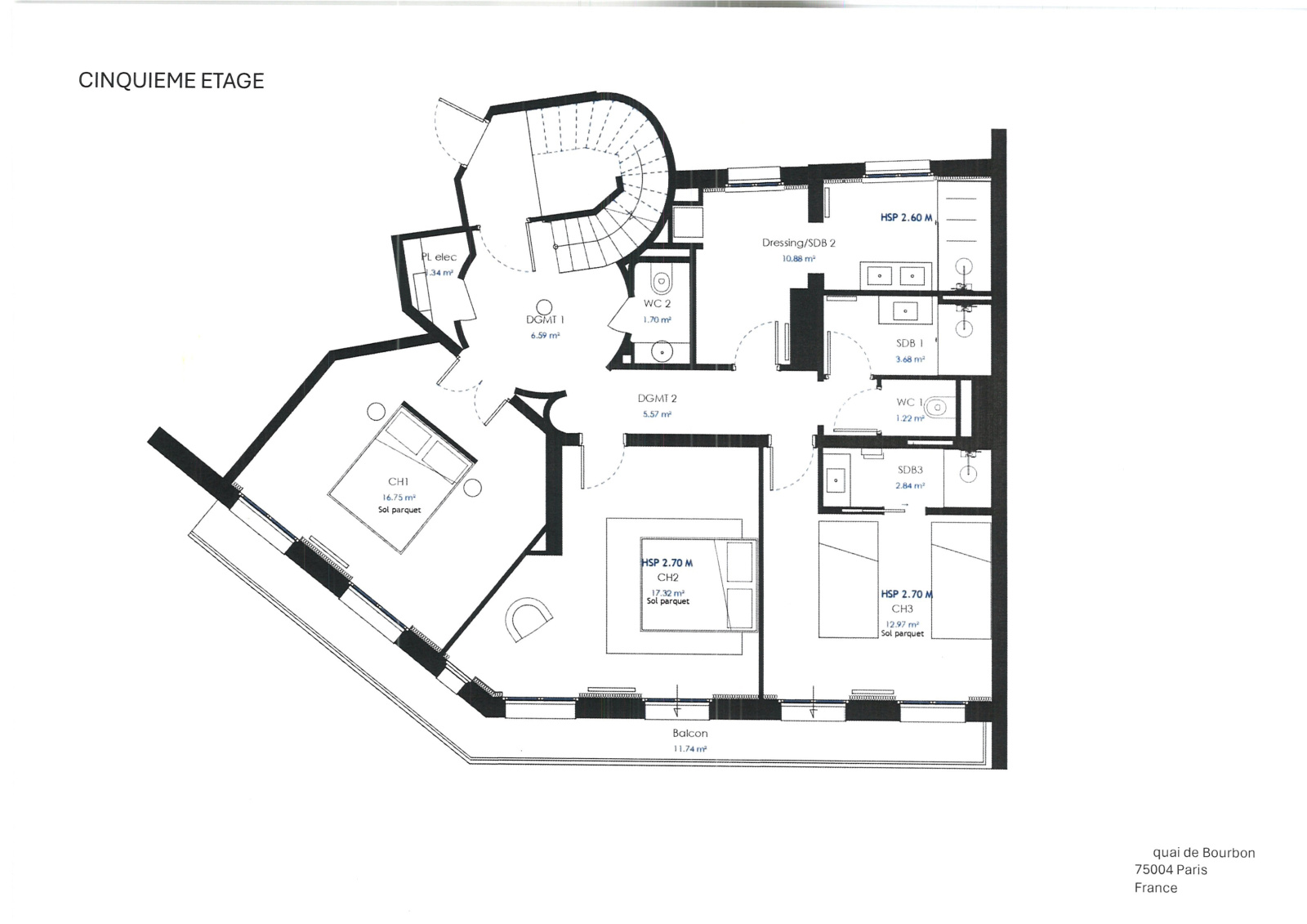
  • 6ème étage
  • 6 étage(s)
  • ascenseur
  • vue Dégagée
  • cave
  • balcon
  • interphone
  • quartier Ile Saint Louis

A propos de ce bien

Ce duplex exceptionnel, situé au dernier étage, offre une vue imprenable sur la Seine et a bénéficié d'une rénovation totale de grande qualité. Il est situé au 5e et 6e étage d'un immeuble ancien avec ascenseur.

Le 5e étage comprend une entrée desservant trois chambres, chacune avec accès à un balcon filant. Vous y trouverez également trois salles de douche, dont une avec espace buanderie, ainsi que deux WC séparés.

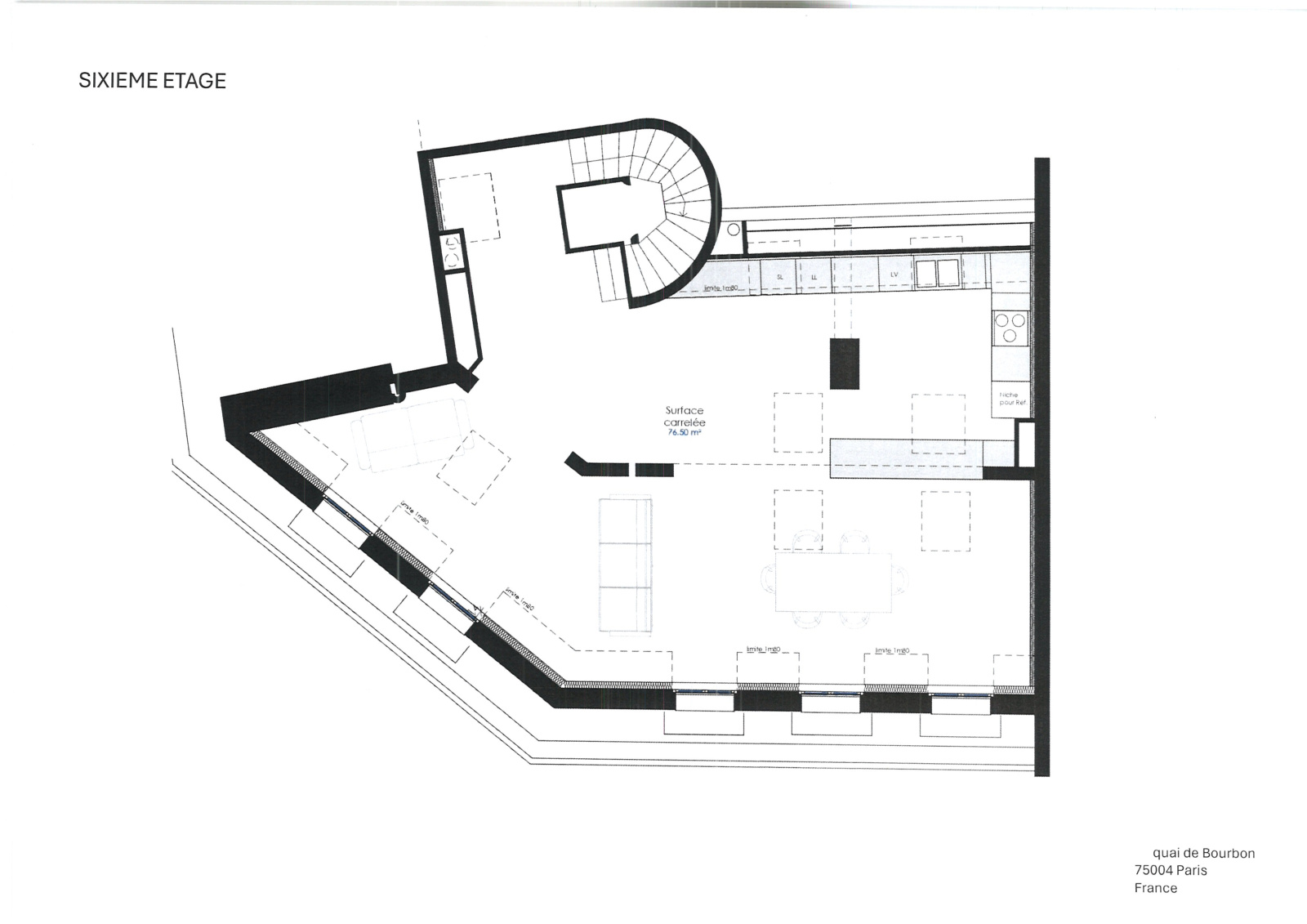
Au 6e étage, une vaste réception s'étendant sur près de 76 mètres carrés avec un plafond cathédrale bénéficiant d'une belle hauteur et de nombreuses fenêtres qui inondent l'espace de lumière naturelle. De plus, une cuisine ouverte aménagée est présente.

Toutes les pièces sont équipées de la climatisation, et l'isolation a été optimisée pour votre confort. Deux caves complètent cet ensemble.


Les informations sur les risques auxquels ce bien est exposé sont disponibles sur le site Géorisques

Diagnostics énergétiques

Consommation énergétique
A B C D E F G
Emission de gaz à effet de serre
A B C D E F G

Montant estimé des dépenses annuelles d'énergie de ce logement pour un usage standard est compris entre 860 € et 1 210 € . 2021 étant l'année de référence des prix de l'énergie utilisés pour établir cette estimation.

Informations financières

Loyer CC* / mois 10 450 €
Honoraires TTC charge locataire 2 344,05 €
Dont état des lieux Non renseigné
Dépôt de garantie TTC 10 000 €
Charges locatives (Previsionnelles mensuelles les avec regularisation annuelle) 450 €

Informations de copropriété

Copropriété Oui

Autour du bien

  • Commerces et santé
  • Loisirs
  • Ecoles
  • Transports
  • Pratique