Alexis RUBINSTEIN Négociateur
Télécharger la fiche
+6
Nouveauté

Maison 5 pièce(s) 2 chambre(s) 154 m²

Saint-Maur-des-Fossés (94210)
749 000 € Référence VMA90000971

Caractéristiques de ce bien

  • Surface 154 m²
  • terrain 260 m²
  • 2 chambre(s)
  • Chauffage individuel : convecteur (electrique)
  • 1 garage(s)
  • 1 niveau(x)
  • vue MAISON D'ANGLE

A propos de ce bien

Le cabinet JACQUES AZOULAY vous propose dans la commune de LA VARENNE ST HILAIRE, une charmante maison d'angle de plus de 100 M2 avec son jardin arboré

Elle comprend:

au rez - de - chaussée :

  • Une entrèe avec toilettes invités
  • Un séjour/salle à manger lumineux avec vue sur le jardin
  • Une élégante cheminée Louis XV
  • Une cuisine équipée en parfait état

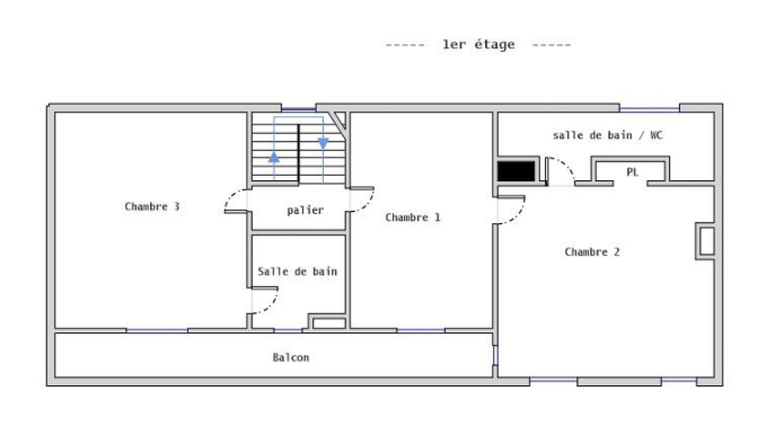
à l'étage:

  • Une chambre avec salle de douche et balcon filant
  • Une pièce polyvalente en enfilade ( bureau ou dressing)
  • Chambre parentale avec accés balcon
  • Une salle de bain
Au sous sol: 50m2
  • Garage
  • Caves
A l'exterieur: 260m2
  • Cabanon de jardin en bois

Maison fonctionnelle pleine de charme, emplacement trés recherché, prés du RER LA VARENNE.

Diagnostics énergétiques

Consommation énergétique
A B C D E F G
Emission de gaz à effet de serre
A B C D E F G
DPE en cours

Informations financières

Prix de vente honoraires TTC inclus 749 000 €

Autour du bien

  • Commerces et santé
  • Loisirs
  • Ecoles
  • Transports
  • Pratique

Calcul des mensualités

* Champs obligatoires